ГлавнаяКаталог Производство — Радонежская ул., 14

Радонежская ул., 14, 397.70 м 2

175 000 ₽
Площадь: 397.70м 2 Этаж 1 из 2
440 ₽/м 2
Шуманский Андрей
Шуманский Андрей
Специалист
или оставьте ваш номер,
и я перезвоню в течение 5 минут
Нажимая на кнопку, вы даете своё согласие на обработку персональных данных и соглашаетесь с политикой конфиденциальности
ОТ СОБСТВЕННИКА БЕЗ КОМИССИИ.
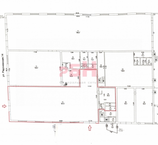
Сдам теплое помещение под производство или склад площадью 397,7 м² по адресу: г. Челябинск ул. Радонежская 14
Основные характеристики и преимущества помещения:
- помещение в собственности, все документы;
- удобный подъезд со Свердловского тракта по ул. Радонежская;
- центральное отопление, водоснабжение и водоотведение;
- в цехе предусмотрена вытяжка ;
- пол -топинг, стены - бетонные блоки, потолок -бетонные перекрытия;
- остекление- евроокна ;
- высота потолка в цехе - 8,8 м;
- на прилегающей территории проведен газ, есть возможность завести в цех;
- территория охраняется, видеонаблюдение;
- на территории есть возможность хранения на открытых площадках прилегающих к территории;
- санузел в производственной части;
- 2 отдельных утепленных евроворот 4 на 5 метров с калиткой, может зайти фура;
- разрешенная мощность 50 кВт с возможностью увеличения.
- размеры цеха 29,9 на 12 метров;
- границы помещения выделены на схеме красным контуром;
- на территории большая парковка для автомобилей;
- есть возможность круглосуточной работы производственно - складского комплекса;
- есть возможность дополнительной аренды производственно -складских площадей и офисов на 2-ом этаже.

Арендная ставка в месяц 175 000 + тепло, вода и электричество по счетчикам.

Регион Бизнес Недвижимость.
ОТ СОБСТВЕННИКА БЕЗ КОМИССИИ.
Арт. 126579623
Расположение

Радонежская ул., 14

Похожие объекты

Посмотреть другие объявления в этой категории