ГлавнаяКаталог Производство — Радонежская ул., 14

Радонежская ул., 14, 624.50 м 2

268 535 ₽
Площадь: 624.50м 2 Этаж 1 из 2
430 ₽/м 2
Шуманский Андрей
Шуманский Андрей
Специалист
или оставьте ваш номер,
и я перезвоню в течение 5 минут
Нажимая на кнопку, вы даете своё согласие на обработку персональных данных и соглашаетесь с политикой конфиденциальности
ОТ СОБСТВЕННИКА БЕЗ КОМИССИИ.
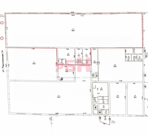
Сдам теплое помещение под производство или склад площадью 624,5 м² , по адресу: г. Челябинск ул. Радонежская 14
Основные характеристики и преимущества помещения:
- помещение в собственности, все документы;
- удобный подъезд со Свердловского тракта по ул. Радонежская;
- центральное отопление, водоснабжение и водоотведение;
- в цехе предусмотрена вытяжка ;
- пол -топинг, стены - бетонные блоки, потолок -бетонные перекрытия;
- остекление- евроокна;
- высота потолка - 8,8 м;
- на прилегающей территории заведен газ, есть возможность завести в цех;
- территория охраняется, видеонаблюдение;
- на территории есть возможность хранения на открытых площадках прилегающих к территории;
- санузел в подсобке производственной части;
- 2 отдельных утепленных евроворот 4 на 5 метров с калиткой, может зайти фура;
- разрешенная мощность 70 кВт с возможностью увеличения.
- размеры цеха 48,03 на 11,7 метров;
- границы помещения выделены на схеме красным контуром;
- есть возможность аренды офисов на втором этаже ,предусмотрена лестница прямо из цеха;
- на территории большая парковка для автомобилей;
- есть возможность круглосуточной работы производственно - складского комплекса;
- есть возможность дополнительной аренды производственно -складских площадей.

Арендная ставка в месяц 268 535 рублей + тепло, вода и электричество по счетчикам.

Регион Бизнес Недвижимость.
ОТ СОБСТВЕННИКА БЕЗ КОМИССИИ.
Арт. 126577448
Расположение

Радонежская ул., 14

Похожие объекты

Посмотреть другие объявления в этой категории