ГлавнаяКаталог Офис — Кирова ул., 19

Кирова ул., 19, 51.00 м 2

4 800 000 ₽
Площадь: 51.00м 2 Этаж 13 из 15
94 117 ₽/м 2
Шуманский Андрей
Шуманский Андрей
Специалист
или оставьте ваш номер,
и я перезвоню в течение 5 минут
Нажимая на кнопку, вы даете своё согласие на обработку персональных данных и соглашаетесь с политикой конфиденциальности
ОТ СОБСТВЕННИКА БЕЗ КОМИССИИ.
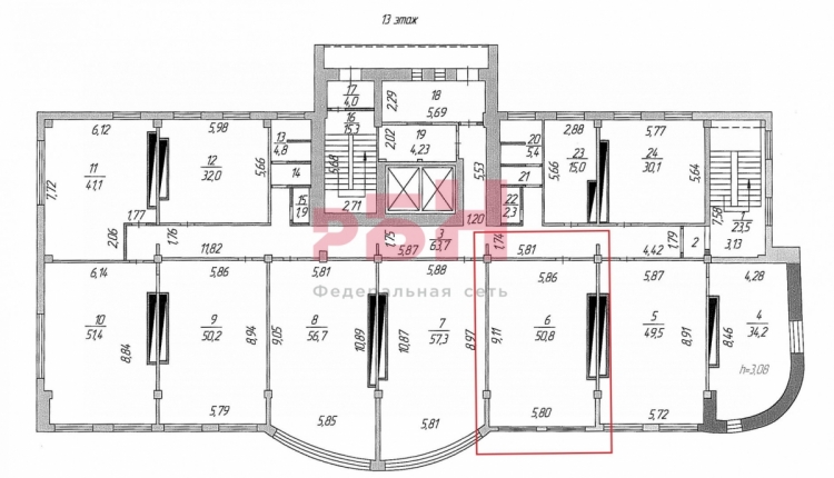
Продам офисное помещение B класса, площадью 51 м² на 13-ом этаже 15-ти этажного дома по адресу: г Челябинск, ул. Кирова, д. 19
Основные характеристики и преимущества помещения:
- помещение в собственности, все документы;
- установлен новый кондиционер;
- 2 просторных пассажирских лифта;
- парковка перед офисом;
- пол линолеум, потолок и стены под покраску;
- на этаже есть открытый балкон;
- высота потолка 3 м;
- вентиляция приточная и вытяжная;
- санузел и душевая на этаже, центральное водоснабжение и отопление;
- разрешенная мощность до 3 кВт ;
- время работы офисного центра с 7-00 до 22-00;
- помещение на схеме выделено красной рамкой;
- мебель на фото можно оставить;
- один взрослый собственник - физлицо;
- без обременений и долгов.

Стоимость помещения 4,8 млн руб.

Регион Бизнес Недвижимость.
ОТ СОБСТВЕННИКА БЕЗ КОМИССИИ.
Арт. 113760415
Расположение

Кирова ул., 19

Похожие объекты

Посмотреть другие объявления в этой категории